Ein neues Teichprojekt kündigt sich für 2010 an:
Seit langer Zeit arbeiten die Ortsgruppen des BUND und des NABU Seeheim-Jugenheim bei Projekten eng zusammen. Insbesondere wenn es gilt, Hand anzulegen, sind die Aktiven gemeinsam vor Ort.
Von seiten des BUND wurde das Projekt ‚Renaturierung des Beerbaches‘ seit geraumer Zeit vorangetrieben- jetzt ist das erste Teilprojekt ‚Weiher am Beerbach‘ genehmigungstechnisch und finanziell so weit gediehen, dass konkret über einen Baubeginn gesprochen werden kann.
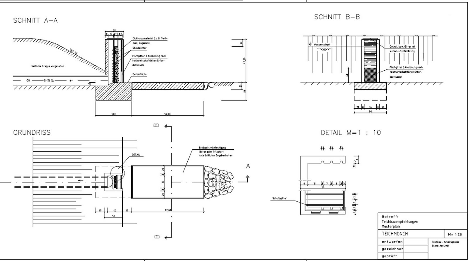
Skizze rechts: Bauplanung des Weihers.
Zusammen mit Wolfgang Feiß, dem Vorsitzenden der BUND Ortsgruppe Seeheim-Jugenheim, wurde das Gelände in Ober Beerbach für die detaillierte Bauplanung begangen. Foto oben: Wolfgang Feiß deutet die Höhe des geplanten Erdwalles an, der den Weiher abschliessen wird.
Eine Option für die Neuanlage des Weihers ist eine Neuauflage der Baggerparty mit dem bewährten Baggerteam der NABU Gruppe Seeheim.
Foto links: Baggerparty an den Etzwiesen bei Seeheim im Frühjahr 2009.
Der Plan so weit:
a) An zwei Wochenenden Anfang 2010 wird mit einem Kleinbagger der Erdaushub bewältigt.
b) Eine Woche darauf wird ein Mönch eingebaut und angeschlossen. Nein, wir betonieren keine Kleriker ein- das ist ein Wasserstandsregler, mit dem Teiche ausgerüstet werden; siehe Skizze rechts.
c) Im Frühjahr wird noch ein Wasserzulauf angebaut, um dem Teich bei Bedarf Wasser zuführen zu können.



Kommentarfunktion geschlossen